$449,990
$449,990
For more information regarding the value of a property, please contact us for a free consultation.
3 Beds
3 Baths
2,001 SqFt
SOLD DATE : 09/04/2024
Key Details
Sold Price $449,990
Property Type Townhouse
Sub Type Townhouse
Listing Status Sold
Purchase Type For Sale
Square Footage 2,001 sqft
Price per Sqft $224
Subdivision Terraces At Farmington
MLS Listing ID 4101442
Sold Date 09/04/24
Style Transitional
Bedrooms 3
Full Baths 2
Half Baths 1
Construction Status Proposed
HOA Fees $225/mo
HOA Y/N 1
Abv Grd Liv Area 2,001
Year Built 2024
Lot Size 2,178 Sqft
Acres 0.05
Property Sub-Type Townhouse
Property Description
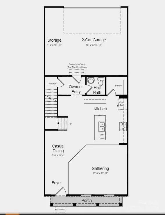
MLS#4101442 REPRESENTATIVE PHOTOS ADDED. August Completion! The Aspen plan is a two-story townhome at Townhomes at Farmington. On the ground floor, you'll find an accessible owner's entry from the rear 2-car garage. Step through the owner's entry into an open-concept kitchen with a walk-in pantry and a casual dining area. The first floor is completed with a spacious gathering area at the front and a convenient half bath. Moving to the second floor, you'll discover a well-designed layout that includes a sizable study at the top of the stairs, ideal for a home office. All three bedrooms, including the deluxe owner's suite with an impressive walk-in shower, are situated on the second floor, along with a conveniently located laundry room and a secondary bath. Structural options include: study, tub and shower at owner's bath, tray ceiling.
Location
State NC
County Cabarrus
Building/Complex Name Terraces at Farmington
Zoning UR-2
Rooms
Primary Bedroom Level Upper
Interior
Heating Natural Gas, Zoned
Cooling Central Air, Zoned
Flooring Carpet, Tile, Vinyl
Fireplace false
Appliance Dishwasher, Disposal, Microwave, Tankless Water Heater, Wall Oven
Laundry Electric Dryer Hookup, Laundry Room, Upper Level
Exterior
Exterior Feature Lawn Maintenance
Garage Spaces 2.0
Community Features Recreation Area, Sidewalks, Street Lights, Walking Trails, Other
Roof Type Shingle
Street Surface Concrete,Other
Garage true
Building
Lot Description Other - See Remarks
Foundation Slab
Builder Name Taylor Morrison
Sewer Public Sewer
Water City
Architectural Style Transitional
Level or Stories Two
Structure Type Brick Partial,Fiber Cement
New Construction true
Construction Status Proposed
Schools
Elementary Schools Hickory Ridge
Middle Schools Hickory Ridge
High Schools Hickory Ridge
Others
HOA Name Evergreen Lifestyles Management
Senior Community false
Restrictions Architectural Review
Acceptable Financing Cash, Conventional, FHA, VA Loan
Listing Terms Cash, Conventional, FHA, VA Loan
Special Listing Condition None
Read Less Info
Want to know what your home might be worth? Contact us for a FREE valuation!

Our team is ready to help you sell your home for the highest possible price ASAP
© 2025 Listings courtesy of Canopy MLS as distributed by MLS GRID. All Rights Reserved.
Bought with Deepthi Mallakki Nagaveerappa • ERA Live Moore

907 Country Club Dr, Lexington, NC, 27292, United States
GET MORE INFORMATION






